Unser Dorfladen

Im Jahr 2022 entstand die Idee eines Tante-Emma-Ladens in Langenfeld. Eine, durch die Ortsgemeinde beauftragte, Machbarkeitsstudie bestätigte den Bedarf an einer wohnortnahen Versorgung und einem sozialen Treffpunkt für alle Generationen.

Dorfladen Grundriss
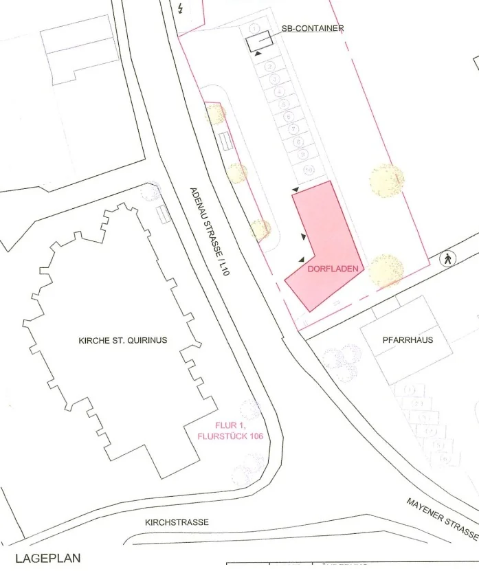
Dorfladen Lageplan
Dorfladen Logo

Der zentrale Standort am Kirchplatz in Langenfeld ermöglicht zudem die Versorgung der umliegenden Orte Arft, Acht, Kirchwald und Langscheid. Auch Wanderer und Nürburgring-Besucher können hier einkehren.

Die Planung und Umsetzung des Projekts erfolgen mit großem Engagement der Dorfgemeinschaft, wobei Menschen aller Altersgruppen aktiv mitwirken. Derzeit arbeiten verschiedene Arbeitsgruppen an unterschiedlichen Aufgabenbereichen, um das Vorhaben zu realisieren.